Büro-/Praxisfläche im repräsentativen Neubau nahe Bergmannkiez zu vermieten!
Im Bezirk Kreuzberg-Friedrichshain, zwischen Bergmannstraße und Tempelhofer Feld entwickelt die BAUWERT AG ein repräsentatives Stadtquartier. Das Gelände der ehemaligen Bockbrauerei verwandelt sich in ein neues lebendiges Quartier auf einem circa 13.000 m² großen Grundstück.
Das kiezansässige Gewerbe bleibt erhalten. Zusätzlich entstehen Eigentumswohnungen, Mikroapartments, geförderter Wohnungsbau sowie Büros. Alle Bereiche summieren sich auf eine Nutzfläche von rund 31.000 m². Attraktiv angelegte Grünflächen zeichnen das Quartier aus. Sie verbinden die verschiedenen Teile auf repräsentative Weise und sorgen für eine hohe Aufenthaltsqualität. So sind die Außenbereiche nicht nur angenehme Begegnungsorte, sondern bieten auch beste Bedingungen für informelles Arbeiten im Freien.
Die Neue Bockbrauerei ist nur wenige Schritte entfernt vom Bergmannkiez und von zwei der schönsten Berliner Parks – dem Viktoriapark und dem Park am Gleisdreieck.
- Moderne Büro-/ Praxisfläche im Neubau
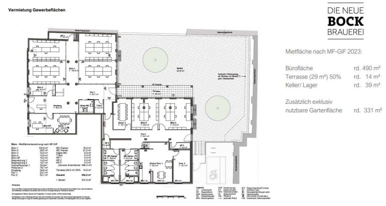
- 490 m² zzgl. 14 m² Terrasse
- Keller-/ Lagerraum im Untergeschoss rd. 39 m²
- Highlight: 330 m² exklusiv nutzbarer Außenbereich / Gartenfläche
- Stufenloser Zugang
- Direkter Zugang von außen
- Lichte Raumhöhe: 2,65 m
- Fußbodenheizung
- Repräsentativer Empfangsbereich mit Platz für eine Garderobe
- Geräumige Personalküche (Küchenzeile nicht enthalten)
Haben wir Ihr Interesse geweckt? Wir freuen uns auf Ihren Anruf oder senden Sie uns einfach eine Kontaktanfrage. Wir beraten Sie gern!



