JETZT BESICHTIGEN - AB JANUAR 2026! Nur für Studierende! 1 Zimmer-Apartment in der Iranische Straße 4 bis 4D
Besichtigungstermine: Dienstag, den 18.11.2025 von 15:00 - 16:00 Uhr
Willkommen in der Apartmentanlage in der Iranischen Straße, im Herzen von Berlin Mitte!
Nutze die Vorteile: Auf die gesamte Studienzeit befristete Mietverträge (max. 42 Monate im Erststudium und max. 24 Monate Masterstudium). Falls sich die Pläne ändern: Kündigungsfrist von 2 Monaten zum Monatsende, nach einer Vertragslaufzeit von 6 Monaten (Mindestmietdauer).
Das aus 5 Häusern bestehende Wohnquartier mit gemischtem Wohnkonzept für Senioren, Studierende sowie Geschäftskunden mit einem befristeten Wohnbedarf wird im 1. Quartal 2026 fertiggestellt.
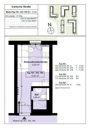
Die Studierendenhäuser 4,4a und 4d bieten vollmöblierte Einzelapartments, die zum Teil auch barrierefrei sind.
Die modern eingerichteten Einzel-Apartments verfügen über ein Bett, Schreibtisch, Kleiderschrank, ein eigenes Bad mit bodengleicher Dusche sowie eine praktische Pantryküche inkl. Ceranfeld, Spüle, Kühlschrank. Die Wohnflächen variieren in den Regelgeschossen von ca. 15m² bis 17m².
Die Apartments mit Dachterrasse im Dachgeschoss sind dem temporären Wohnen (Central Home) zugeordnet.
Attraktive Gemeinschaftsflächen wie Lobby, Veranstaltungsraum/ Learning Lounge und die Gemeinschaftsküche laden zum gemeinsamen Verweilen ein. Die überdachten Fahrradstellplätze sowie ein exklusiv für die Studierenden zugänglicher Waschsalon runden das Angebot an Gemeinschaftsflächen ab. Weiterhin bietet die attraktive Außenanlage sportliche Aktivitäten wie Tischtennis, Calisthenics, Bouleattraktive.
Die Wohnanlage in Berlin Mitte liegt in einer zentralen und lebendigen Gegend, die viel zu bieten hat. Mit fußläufiger Entfernung ist die Haltestelle Osloer Straße und Nauener Platz in wenigen Minuten erreichbar und bietet eine sehr gute Anbindung an den ÖPNV. Hierdurch werden kurze Anfahrzeiten zur Berliner Hochschule für Technik sowie dem Charité Campus Virchow-Klinikum ermöglicht
Die Lage in Berlin Mitte ermöglicht es den Bewohnern, die zahlreichen Sehenswürdigkeiten, Restaurants, Cafés und Einkaufsmöglichkeiten der Stadt bequem zu Fuß oder mit den öffentlichen Verkehrsmitteln zu erkunden.








