Teterower Ring 165, 2. OG, Straße

Objektnummer
1230/2389/1231

Auf den Grundstücken entstehen in den 4 bis 7 geschossigen Gebäuden 360 Wohnungen für Senior:innen. Das geplante Vorhaben stellt neuen, auf die Bedarfe älterer Menschen zugeschnittenen Wohnraum zur Verfügung. Die seniorengerechten Ein- bis Zwei-Zimmer-Wohnungen sind sämtlich barrierefrei und werden mit eigenem Bad und Einbauküche ausgestattet. Attraktive Gemeinschaftsflächen erweitern das Angebot und ermöglichen den Austausch zwischen den Bewohnerinnen und Bewohnern. Die beiden Gebäude weisen eine kammartige Grundrissfigur mit je zwei Innenhöfen auf. Die Öffnung erfolgt über die Innenhöfe zum Wohnquartier Teterower Ring. Das Wohnangebot wird ergänzt durch ambulante Pflegeangebote, therapeutische Angebote für Seniorinnen und Senioren sowie durch Betreuungsangebote.Hierfür wird die auf dem Grundstück befindliche Bestandsbebauung ergänzt. Der Neubau sieht die Errichtung drei neuer Wohnhäuser sowie Gewerbeeinheiten vor, um das Angebot an bezahlbarem Wohnraum in Berlin zu erweitern und die Versorgungsstruktur für das Gebiet sinnvoll zu ergänzen. In den zentralen Erdgeschossbereichen sind Flächen für ergänzende Nutzungen, wie ambulante Pflege- oder Betreuungsangebote sowie einen Gemeinschaftsraum für die Senior:innen vorgesehen. Die Tiefgarage bietet Platz für 120 PKW.

Ausstattung

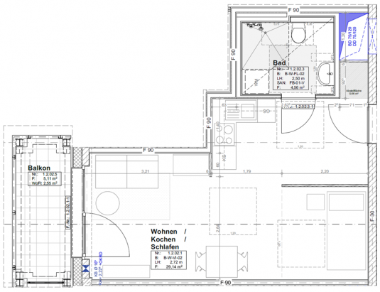
Fußbodenheizung, Einbauküche, modernes Bad mit ebenerdiger Dusche, Balkon/Terrasse, Personenaufzug, bodentiefe Fenster, Keller, Fahrradabstellplatz, Tiefgarage

Weitere Ausstattungsmerkmale dieser Wohnung sind: Einbauküche, innenliegendes Bad, Dusche, Balkon, seniorengerecht, Keller, Aufzug vorhanden, Hausmeister-Service, Personenaufzug, Einbauküche mit Elektrogeräten, Balkon, Barrierefrei

Lageinformationen

Der U-Bahnhof Kaulsdorf Nord ist nur fünf Minuten Fußweg entfernt. Mit der U 5 sind Sie in knapp 30 Minuten am Alexanderplatz in Berlin-Mitte und in 45 Minuten am Hauptbahnhof. Außerdem stehen mehrere Buslinien zur Verfügung. Das Stadtteilzentrum Helle Mitte mit seinen attraktiven Geschäften, einem Kinokomplex und vielfältiger Gastronomie liegt nur drei U-Bahn-Stationen vom U-Bahnhof Kaulsdorf/Nord entfernt. Eine Schwimmhalle und ein Stadion bieten weitere Möglichkeiten abwechslungsreicher Freizeitgestaltung. Unsere Seniorenwohnanlage ist umgeben vom schönen Naturreservat Wuhletal. Das Versorgungs- und Dienstleistungsangebot ist über das Einkaufszentrum Spreecenter mit seinem Ärztehaus, gastronomischen Einrichtungen, Läden des täglichen Bedarfs, Apotheke, Bank und Drogerie am U-Bahnhof Kaulsdorf-Nord fußläufig erreichbar.