Einzelhandelsfläche mit ca. 100 m² Fläche zzgl. WC-Anlagen im Neubau (Studierendenapartments)
Auf einem rd. 17.000 m² großen Areal in Lichtenberg wurden 2023 zwei neue und modern gestaltete Hochhäuser mit jeweils 11 Geschossen für 800 Studierende errichtet.
Sie fügen sich städtebaulich als Zeile in die unmittelbare Umgebung ein. Die voll ausgestatteten, zum Teil barrierefreien Einzel- und Doppelapartments mit eigenem Bad und Pantryküche, bieten den Bewohnerinnen und Bewohnern den idealen Raum zum Leben und Lernen. Ergänzt wird das Wohnangebot durch diverse Gemeinschaftsflächen, die die Aufenthaltsqualität erhöhen und zu Begegnung und Austausch animieren sollen.
Im Erdgeschoss befindet sich eine Kita und die zur Vermietung stehende Einzelhandelsfläche, die momentan als Café genutzt wird.
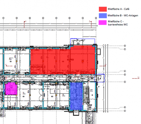
- Einzelhandelsfläche ca. 125,86 m² zzgl. großzügigem Außenbereich ca. 50 m²
- 98,70 m² Fläche, 19,03 m² WC-Anlagen, 8,13 m² WC barrierefrei
- Deckenhöhe in Teilbereichen bis ca. 6 m
Das Objektgrundstück liegt im Ortsteil Lichtenberg des gleichnamigen Stadtbezirks. Der Standort zeichnet sich durch eine gute Erreichbarkeit mit dem ÖPNV aus, fußläufig in 3 Minuten ist zum Beispiel die Straßenbahnhaltestelle Allee der Kosmonauten/ Rhinstraße (TRAM 21, 27, 37, M17) zu erreichen. Kurze Fahrzeiten verbinden den Standort mit der City und anderen Berliner Stadtbezirken. Dies gilt auch für die Hochschulen und Universitäten der Stadt. Mehrere Einkaufsmöglichkeiten befinden sich in fußläufiger Entfernung.
Haben wir Ihr Interesse geweckt? Wir freuen uns auf Ihren Anruf oder senden Sie uns einfach eine Kontaktanfrage. Wir beraten Sie gern!















